МАРКИРОВКА

1- ВР 80-75: Вентилятор радиальный (центробежный)
низкого давления
2- Номер вентилятора, число соответствующее наруж-
ному диаметру рабочего колеса, в дециметрах
3- Мощность двигателя (кВт) и обороты (об/мин)
Назначение
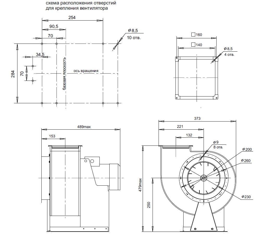
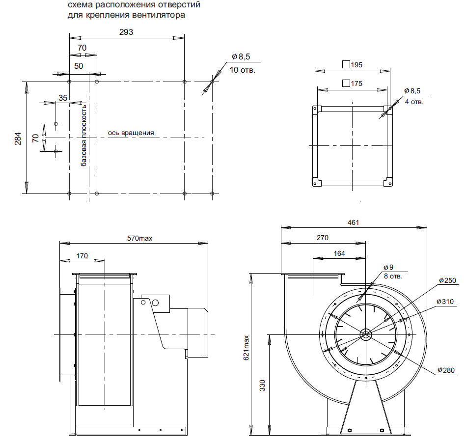
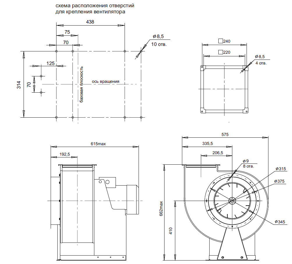
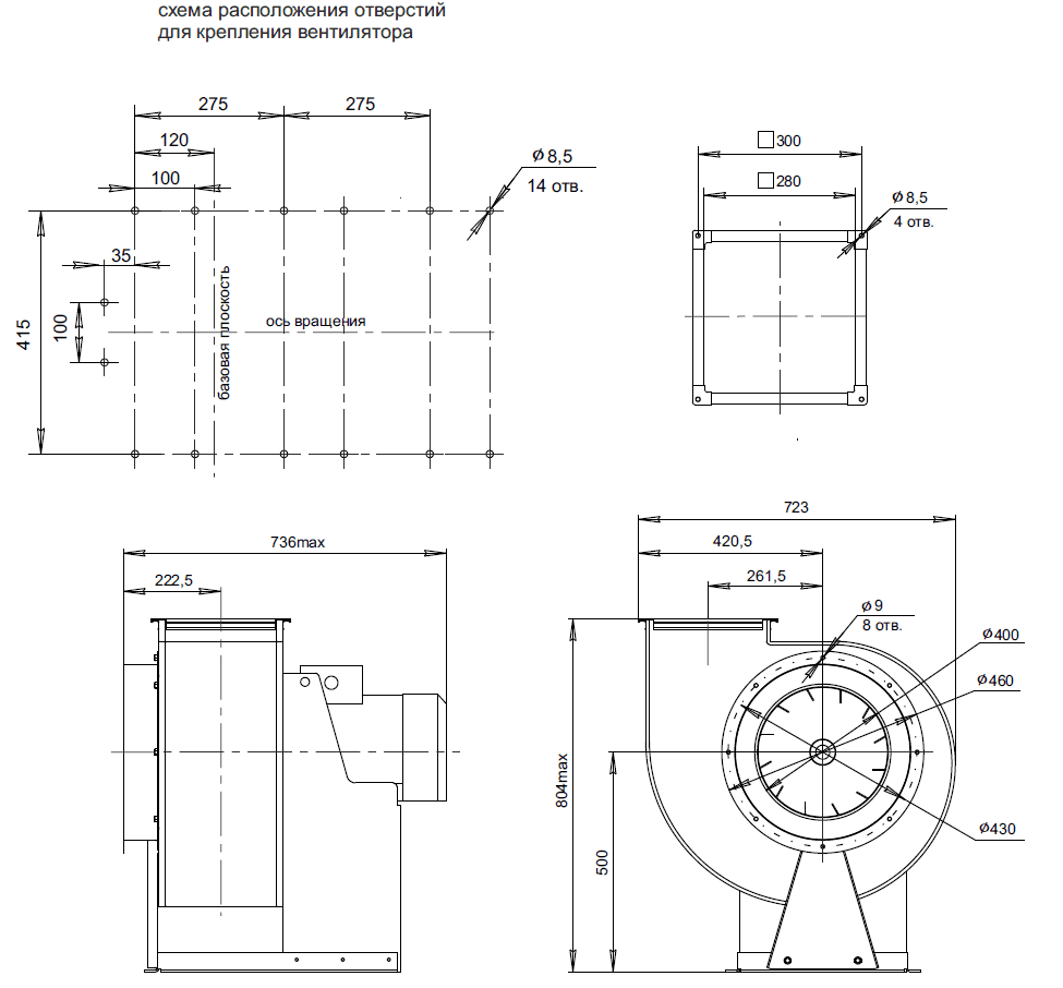
Радиальные вентиляторы среднего давления ВР-300- 45 применяются в стационарных системах вентиляции, кондиционирования, воздушного отопления, технологических установках и т.д.
Конструкция
Радиальные вентиляторы состоят из четырех основных элементов: рабочего колеса, спирального корпуса, привода и станины.
Корпус вентилятора общего назначения выполнен из оцинкованной стали. Отдельные части корпуса соединяются с применением формы Питтсбургского фальца
«Pittsbourg».
Рабочее колесо вентилятора изготавливается с лопатками, загнутыми вперед.
Для привода радиальных вентиляторов используются трехфазные асинхронные электродвигатели с коротко- замкнутым ротором серии АИР.
По направлению вращения рабочего колеса различают вентиляторы правого и левого вращения.
Вентилятор правого вращения: вентилятор, рабочее колесо которого вращается по часовой стрелке- вид со стороны всасывания.
Вентилятор левого вращения: вентилятор, рабочее колесо которого вращается против часовой стрелки- вид со стороны всасывания.
Условия эксплуатации
Вентиляторы радиальные ВР-300-45 предназначены для перемещения невзрывоопасных газовых сред с температурой не выше 80 оС, содержащих твердые примеси не более 100 мг/м3, не содержащих липких и волокнистых материалов, в условиях умеренного климата 1-ой категории размещения по ГОСТ 15150-69 (при защите двигателя от прямого солнечного воздействия и атмосферных осадков) с температурой окружающей среды от минус 40 до плюс 40 оС.















